chef x yugati
Kesişen Hayatlar Sosyal Konut Projesi
Ses
GÜN GECE
Ruzgar Analizi
Guc
35%
Karisim
Orta
Yon
Dogudan batiya
Yağmur
Dikey yagmur efekti
Kesitçi
Yanlardan kes
Yukarıdan aşağı kes
POI Koordinat
X 0.00
Y 0.00
Z 0.00
Haritaya tikla ve nokta sec.
Sosyal Konut A

Sosyal Konut A

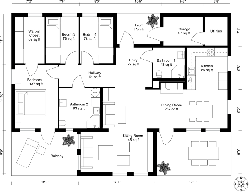
Sosyal Konut A Plan

Yerleke içindeki sosyal konut blounun planı ve kentsel omurgayla ilikisi.

Sosyal Konut A, kompakt birimlerin paylaımlı açık alanlarla balandıı, gündelik yaamı kolaylatıran bir kentsel yenileme modeli. Plan organizasyonu, doal ııı içeri alan boluklar ve esnek oda kurgusu etrafında ekilleniyor. Cephelerde gölge/süzgeç etkisi yaratan açıklıklar, yazın serinlik, kıın ısı kazancı salıyor. Ortak çamaırhane, oyun alanı ve depolama birimleri blok giriine yakın konumlandırıldı.